Produktnews

THERM+ FDR

THERM+ FDR | Flächenbündig integrierte Automatik-Schiebetür

Die neue Form der Eingangsoptik mit flächenbündig integrierter Automatik-Schiebetür

Mit der neuen THERM+FDR präsentiert RAICO eine innovative Lösung für moderne Eingangsbereiche, welche Design, Komfort und Effizienz konsequent verbindet. Die klare, flächenbündige Fassadenoptik ohne tiefe Laibung sorgt für ein harmonisches Erscheinungsbild, das Architekten überzeugt und Bauherren ein repräsentatives Entrée bietet.

Die Automatik-Schiebetür ist nahtlos in die Fassade integriert – ein störender Kasten im Innenraum gehört der Vergangenheit an. Dank der bewährten Systematik vereint die THERM+ FDR alle wichtigen Komponenten in einem einbaufertigen Bausatz. So werden Montage und Umsetzung deutlich effizienter. Klar definierte Schnittstellen und ein reduzierter Montageaufwand erleichtern die Arbeit für Fassadenbauer und Handwerker.

THERM<sup>+</sup> FDR Muster
THERM+ FDR Muster

Variabel einsetzbar für die THERM+ Varianten I und V, ermöglicht das System eine flexible Planung. Das integrierte Tragprofil in der Fassadenebene und die abgestimmte Pfosten-Riegel-Optik schaffen eine ästhetische Lösung, welche Funktion und Gestaltung konsequent verbindet.

Besonderes Augenmerk wurde auf Technik und Sicherheit gelegt: Der untere Anschluss mit Edelstahlschiene und die durchdachte Folienführung gewährleisten eine saubere Verbindung vom Fassadenbereich bis über die Schiebetür. Der klar definierte Ablauf und die vereinfachten Prozesse erhöhen die Sicherheit und sorgen für eine reibungslose Umsetzung auf der Baustelle. Der bekannte Klemmschutz bei Automatiktüren wurde deutlich entschärft.

Mit der THERM+  FDR gelingt RAICO ein neues Niveau in der Gestaltung automatischer Eingangsbereiche: elegant, funktional und montagefreundlich – eine Lösung, die sowohl Architekten als auch Bauherren überzeugt.

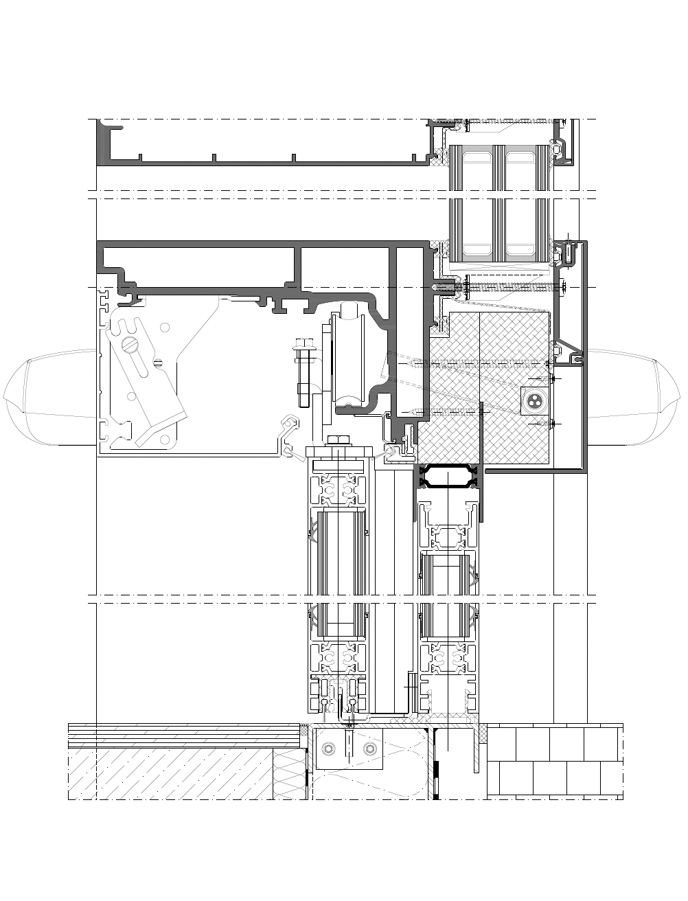
THERM<sup>+</sup> FDR | Vertikaler Schnitt
THERM+ FDR | Vertikaler Schnitt

Weitere Informationen finden Sie in unserem Flyer

 

Produktvideo:

Jetzt mehr Infos im Flyer lesen!
Jetzt mehr Infos im Flyer lesen!

Entdecken Sie jetzt die umfassenden Vorteile und innovativen Highlights der neuen THERM+ FDR Architektenbroschüre! Auf den folgenden Seiten präsentieren wir Ihnen die entscheidenden Parameter, die für Ihre Planung relevant sind.

Unser Expertenteam steht Ihnen selbstverständlich jederzeit persönlich für Rückfragen, individuelle Beratung oder weiterführende Informationen zur Verfügung.

Tauchen Sie ein in die Welt von THERM+ FDR und erfahren Sie mehr über technische Details und Planungsoptionen. Lesen Sie jetzt weiter und sichern Sie sich Ihre Bestellung!

Hier in unserem Download

THERM<sup>+</sup> FDR Broschüre Architekt
THERM+ FDR Broschüre Architekt

Das THERM+ FDR Kit bietet Verarbeitern eine Vielzahl von Vorteilen – besonders in der Praxis, wo Effizienz und Präzision zählen. Entscheidend ist: Sie erhalten nicht nur eine hochwertige Automatik-Schiebetür, sondern einen kompletten Bausatz, der sich nahtlos in die Fassade einfügt.

Dank durchdachter Planung profitieren Sie bei der Umsetzung von zahlreichen Vorteilen: zentralisierte Schnittstellen, eine ganzheitlich geplante Türlösung und viele weitere Details, die das Handling vor Ort erheblich vereinfachen und den Einbau deutlich effizienter gestalten.

Überzeugen Sie sich selbst von der Qualität und dem durchdachten Konzept – in unserer neuen THERM+ FDR Broschüre erfahren Sie alles auf einen Blick!

THERM<sup>+</sup> FDR Broschüre Verarbeiter
THERM+ FDR Broschüre Verarbeiter