Product news

THERM+ FDR

THERM+ FDR | Flush-mounted integrated automatic sliding door

The new entrance design with flush-mounted automatic sliding door

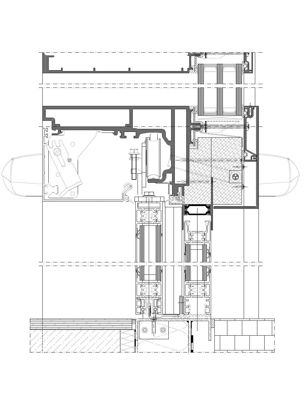
With the new THERM+FDR, RAICO presents an innovative solution for modern entrance areas that consistently combines design, comfort and efficiency. The clear, flush façade appearance without deep reveals ensures a harmonious appearance that impresses architects and offers building owners a representative entrance.

The automatic sliding door is seamlessly integrated into the façade – a disruptive box in the interior is a thing of the past. Thanks to its proven system, THERM+ FDR combines all important components in a ready-to-install kit. This makes installation and implementation significantly more efficient. Clearly defined interfaces and reduced installation effort make work easier for façade builders and craftsmen.

THERM<sup>+</sup> FDR sample
THERM+ FDR sample

Variably applicable for the THERM+ variants I and V, the system enables flexible planning. The integrated support profile in the façade level and the coordinated mullion-transom look create an aesthetic solution that consistently combines function and design.

Particular attention has been paid to technology and safety: the lower connection with stainless steel rail and the well-designed foil guide ensure a clean connection from the façade area to the sliding door. The clearly defined sequence and simplified processes increase safety and ensure smooth implementation on the construction site. The familiar anti-trap protection on automatic doors has been significantly improved.

With THERM+ FDR, RAICO has achieved a new level in the design of automatic entrance areas: elegant, functional and easy to install – a solution that impresses both architects and builders.

THERM<sup>+</sup> FDR | Vertical section
THERM+ FDR | Vertical section

Further information can be found in our flyer

 

Product visualisation:

Read more in our new flyer!
Read more in our new flyer!